ANEXO 3
GRÁFICO Nº 1: Retiros de la Línea de Edificación – manzana consolidada en un 50% con retiros diferentes a los establecidos por la presente Norma
GRÁFICO Nº 2: Retiros de la Línea de Edificación en Esquina.-
GRÁFICO Nº 3: Dimensión y trazado de las Ochavas.-
GRÁFICO Nº 4: Ocupación de la Ochava en Planta Baja.-
GRÁFICO Nº 5: Ocupación de la Ochava en Planta Alta.-
GRÁFICO Nº 6: Formulario F-LMT.1: Habilitación del Ente Prestador del Servicio de Energía Eléctrica para construcciones próximas a Líneas de media y Alta Tensión.-
GRÁFICO Nº 7: De la distancia de una Edificación, un cartel o cualquier otro tipo de instalación, a una Línea de Media Tensión:
GRÁFICO Nº 8: FACHADAS.-
GRÁFICO Nº 9: FACHADAS: Saliente de Balcones.-
GRÁFICO Nº 10: FACHADAS: Saliente de Balcones en ochavas.-
GRÁFICO Nº 11: FACHADAS: Saliente de Aleros y Marquesinas en Planta Baja.-
GRÁFICO Nº 12: FACHADAS: Saliente de Aleros y Marquesinas en planta Alta.-
GRÁFICO Nº 13: FACHADAS: Saliente de Aleros y Marquesinas en calles arboladas.-
GRÁFICO Nº 14: FACHADAS: De los Toldos.-
GRÁFICO Nº 15: VEREDAS: De las cotas de nivel.-
GRÁFICO Nº 16: VEREDAS: De las Pendientes.-
GRÁFICO Nº 17: VEREDAS: De la Continuidad.-
GRÁFICO Nº 18: VEREDAS: Cestos de Residuos – De la Ubicación.-
GRÁFICO Nº 19: VEREDAS: Cesto de Residuo - Modelo 1.-
GRÁFICO Nº 20: VEREDAS: Cesto de Residuo - Modelo 2.-
GRÁFICO Nº 21: VEREDAS: Cesto de Residuo - Modelo 3.-
GRÁFICO Nº 22: VEREDAS: De la Rampa para discapacitados.-
GRÁFICO Nº 23: VEREDAS: Del Espacio Verde en todas las veredas excepto en Av. San Martín.-
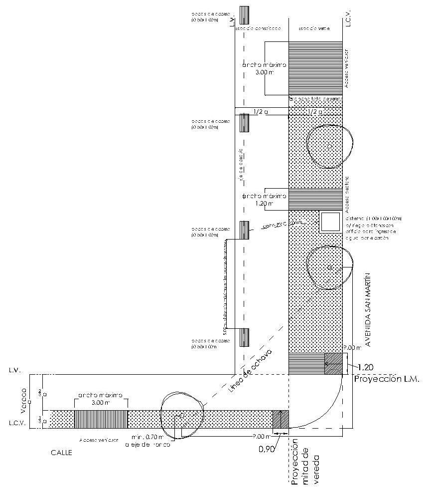
GRÁFICO Nº 24: VEREDAS: Espacio verde en veredas de Av. San Martín.-
GRÁFICO Nº 24-a: VEREDAS: Cisterna de riego en arbolado público de Av. San Martín y acequias.-
GRÁFICO Nº 24-b: VEREDAS: Diferencias de nivel en rampas vehiculares.-
GRÁFICO Nº 24-c: VEREDAS: Diferencias de nivel en rampas vehiculares – Rampas removibles.-
GRÁFICO Nº 25: VEREDAS: De los canteros en veredas.-
GRÁFICO Nº 26: De los Cerramientos al Frente del lote – Lote entre medianeras
GRÁFICO Nº 27: De los Cerramientos al Frente del lote – Lote en esquina
GRÁFICO Nº 28: De los Cerramientos divisorios de propiedades en los sectores NO correspondientes a retiro para Jardín Privado.-
Last updated on





























































